
SHARE 成瀬・猪熊建築設計事務所による名古屋のシェアハウス「LT城西」

photo©西川公朗
成瀬・猪熊建築設計事務所が設計した名古屋のシェアハウス「LT城西」です。




















以下、建築家によるテキストです。
これは、業界的にも珍しい、新築のシェアハウスの計画です。近年急速に増加しつつあるシェアハウスは、水回りやリビングを住人たちで共有する、いわば大きな家のようなスタイルの住まいです。異なるのは、住まい手が家族でない他人であること。そこには、運営的にも空間的にも、他人同士が自然に場を共用し住みつづけるための、独特の技術が必要となります。
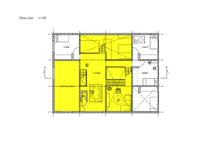
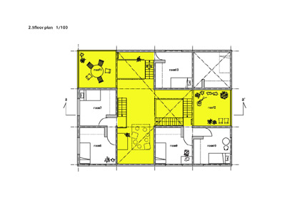
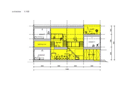
今回の設計は、新築であることを積極的に捉え、建築全体の構成を考え直すことによってシェアハウスとしての空間を作りました。共用部と個室の配置を同時に検討し、個室の立体的なレイアウトによって、残余としての共用部に異なる居心地の居場所を複数作り上げました。吹き抜けたエントランスホールや、ダイニングテーブル付近は、多人数で集まるのに適している一方で、共用部の隅にあるリビングや窓際のスペースは、一人でも思い思いに時間を過ごすことも出来るスペースです。キッチンカウンターは、比較的少人数のコミュニケーションに適しています。2階のラグスペースは、最もリラックスした空間です。こうした空間作りによって、住人は、より気軽に、個室の延長として共用部を利用できるようになります。また平面図では一見同じに見える個室の性格は、リビングからの距離や経路といった共用部との関係性や、天井の高さによって、一つとして同じものがない状況を作り出しました。
これだけの豊かな共用部と、8畳の個室を有していながら、この建築は、延べ床面積を居住人数で按分すると23平米ほどしかありません。まさに、新しいすまいのスタンダードです。
概要
■物件名:LT城西
■運営者 株式会社デクーン http://d-flat-nagoya.com/about/
■専用ページ http://lt-josai.com
■入居案内 http://d-flat-nagoya.com
E-MAIL:sakura.wa.saitaka [@] gmail.com
■建築概要
所在地:愛知県名古屋市
用途:シェアハウス(寄宿舎)
建築面積:167.95㎡
延床面積:321.58㎡
階数:地上2階建て
竣工:2013年
設計・監理:
建築 株式会社成瀬・猪熊建築設計事務所
構造 坪井宏嗣構造設計事務所
設備 Gn設備計画
施工:株式会社ザイソウハウス

