
SHARE シキナミカズヤ建築研究所+OUVIによる「セタガヤの家」

photo©雨宮秀也
シキナミカズヤ建築研究所+OUVIが設計した「セタガヤの家」です。




















以下、建築家によるテキストです。
敷地の南側に小さな雑木林があった。設計当初から宅地化されることが決まっていたが、それが残っていた頃の環境を無視して設計することに違和感があった。雑木林を敷地の中に植え替えることで、かつてあった記憶をこの建物に染み込ませることができるのではと考えた。
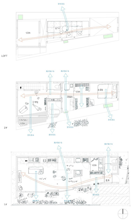
敷地からナナメに建物をセットバックさせ、奥行きの違う庭を計画し、さらに庭につながるリビングが幅を変えながら連続し、深く低く伸ばした庇によって包容感のある場所をつくった。
各部屋は生活を一筆書きでなぞれるような一列の動線とし、南北方向は外部を意識させ奥行きをつくり、東西方向は各用途を連続させた空間としている。不整形な場所は隙間として処理し、設計における余白としてゆとりと更なる奥行きをつくりだしている。
あの雑木林は、跡形も無く伐採され住宅が建ち並んだ。庭の木が庇に絡みつき一体化したこの住宅は、かつての環境を取り戻したことで周囲に左右されずに再び時間を刻んでいくはずである。
■建築概要
設計者クレジット:シキナミカズヤ建築研究所+OUVI
<設計>
シキナミカズヤ建築研究所+OUVI
-意匠設計:シキナミカズヤ建築研究所
-構造設計:OUVI
<外構、造園>
藤倉造園設計事務所
<施工>
成幸建設
