![サムネイル:小阿瀬直建築設計事務所[SNARK]+OUVIによる群馬県高崎市の集合住宅「ridge」](/jp/ridge_002.jpg)
SHARE 小阿瀬直建築設計事務所[SNARK]+OUVIによる群馬県高崎市の集合住宅「ridge」



















以下、建築家によるテキストです。
「ridge」
群馬県高崎市に建つ集合住宅の計画。
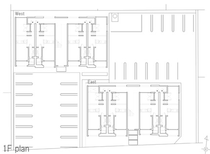
この地域は、一人当たりの自動車保有率が日本一の車社会である。車移動の移動距離が長いことは生活圏の拡大につながり、この地域特有のローカリティである。敷地のコンテクストといえば、隣近所や徒歩でいける生活圏を対象とするが、今回は敷地のコンテクストをもっと広域な範囲と捉え、身体スケール、街並のスケールに加えて、更にマクロな風景のスケールで設計をしている。
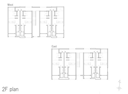
各住居は、ほぼ同じ平面構成をしているが、断面形状は部屋の位置や道路からの視線、屋根形状から丁寧に紐解き、各部屋の環境に合わせた形状としている。その結果、開口部と天井、床の変化が視線と光をコントロールし、影がテクスチャとなって場に密度の濃淡を設える。
外観ボリュームの連なりと内部天井の傾斜、それぞれの尾根が、この地域特有の広域な”近隣”と入居者の感覚とを繋げるこの地域における集合住宅の新たなカタチを指し示している。
■建築概要
設 計:小阿瀬直建築設計事務所[SNARK]+OUVI
用 途:集合住宅
敷 地:群馬県高崎市東貝沢町
完 成:2012年2月
構造規模:木造2階建
敷地面積:708.75㎡(W)+679.68㎡(E)
建築面積:242.56㎡(W)+244.53㎡(E)
延床面積:381.05㎡(W)+380.06㎡(E)
Web:http://www.snark.cc/
Mail:info@su-70.jp

