
SHARE 今津康夫 / ninkipen!によるヘアサロン「LE CINQ」

















以下、建築家によるテキストです。
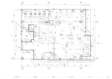
ヘアサロンのインテリアデザインである。
店の中央に高さ3mのパキラを植え、そのパキラを取り囲むように鏡を卍型に配置する。次にそれらを取り囲むように、さらに鏡と植物を配置する。
そうすることで、客同士の視線をずらしプライベート感を確保するのと同時に、様々な方向に向けられた鏡は、反射し合いながら映り込むイメージを増幅させる。
オリジナルな鏡の配置によって、新しいサロンの風景を創りだそうと試みている。
■建築概要
Project name:LE CINQ
Architect:Yasuo Imazu / ninkipen!
主要用途:hair salon
所在地:大阪府門真市
工程:2012.3月
規模:219.5m2
カラーチップ:カーテンのエメラルドグリーン

