
SHARE 篠崎弘之 / 篠崎弘之建築設計事務所による栃木・宇都宮の住宅「house M」









以下、建築家によるテキストです。
house M
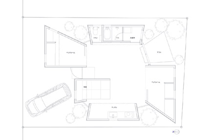
女性がふたりで住むための木造平屋の住宅。
敷地の真ん中に6.0x6.0mのスペースを確保し、そのまわりにトイレやお風呂、キッチン、収納やベッドスペースがそれぞれ必要な大きさで敷地全体にラッパ状に広がって張り出している。それらに2x12材の梁でつくられた大屋根がふたのように乗っかって全体を構成している。
張り出しているラッパ状の隙間からは外の木々が見えたり、ドアがあって出入口になっていたり、車をとめるスペースになっている。
大きな屋根の下の、光が差し込むおおらかな居住のスペースが、それを補う機能的なスペースによって支えられているという構成を、ひとつのかたちとして表現している。
■建築概要
敷地:栃木県宇都宮市
構造規模:木造平屋
構造設計:寺戸巽海構造計画工房
敷地面積:138.75㎡
建築面積:66.14㎡
延床面積:63.87㎡
設計期間:2011.01~2011.09
施工期間:2011.10~2012.03
施工:イケダ工務店

