
SHARE 田中裕之 / 田中裕之建築設計事務所による東京のビストロ「ビストロ アギャット」

photo©川村麻純
田中裕之 / 田中裕之建築設計事務所が設計した東京都江東区富岡のビストロ「ビストロ アギャット」です。










以下、建築家によるテキストです。
ビストロ アギャット Bistro Agathe
富岡八幡宮や深川不動堂などの社寺と隅田川に囲まれた門前仲町の路地にある、カウンターをメインにしたビストロである。社寺に参拝したり、隅田川の桜並木を散歩してから食事にくることも多く想定されるため、そういった周遊で得られたイメージがあるその直後に訪れる場所としてふさわしい店づくりとは何かを考えることが必要ではないかと思った。
一方で、この依頼は私と同時期にフランスで生活をしていた友人夫妻からで、「料理」、「サービス」、「空間」が一体となって「門前仲町で料理を楽しむための時間と場所」をつくるということがプライベートな要望として求められた。
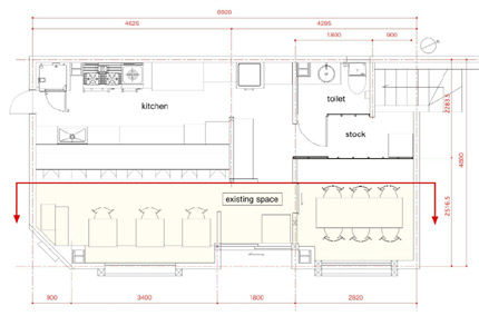
・STEP1.2(平面を2分割する)
予算、工期の都合上、全てについて手を加えることが困難なため、平面長手方向半分(外部からはみえない方向)を既存残しとし、外部から見える方向にある厨房とカウンターなど、料理スタイルの変更から必然的に仕様変更が決まる残り半分を改装する。
→ 小料理屋として長年営業していた和風の外観を引き継ぎ、 改装する内部との対比を強めることで通りの人に対して訴求力(新しいお店ができたということがわかるような)をもたせる。
・STEP3.4(いったん分割した空間をまぜる)
カウンター上部(収納扉)にはアクリルミラーを敷き詰め、各々角度を振って取付けることによって、外部からは客、テーブル、料理、既存残しの壁天井など店内の様子が、店内からは外部の様子が断片化されてみえる。
店内からは外部が、また、外部からは店内が、あるいは改装部分に既存が映り込むことによって、2つに分割した空間が混ざり合うことを狙っている。
(アクリルミラーは映り込み以外にも客席上部のダウンライト、テーブル席やカウンター席のテーブルからの反射により間接照明として機能させている)
■建築概要
所在地:東京都江東区富岡
主要用途:ビストロ
主体構造:SRC
延床面積:60m2
竣工:2011年6月
設計:田中裕之建築設計事務所
担当 田中裕之 花塚紘紀
施工:ROOVICE 福井信行 工藤尭
照明デザイン:Luxie 近藤真由美
写真:川村麻純
ロゴデザイン:紀太みどり

