
SHARE 齊藤良博 / エイスタディによる”tha office”

齊藤良博 / エイスタディが設計した”tha office”です。中村勇吾のデザインスタジオtha ltd,のオフィスです。






















以下、作品に関するテキストです。
中村勇吾氏率いるデザインスタジオtha ltd,のオフィスをデザインしました。
thaのデザインメソッドを、「データベースに命令を与える事で、心地よいサプライズを産み出すことに職人的なエネルギーを注ぐ事」と捉え、空間のエレメントに置換することを目指しました。
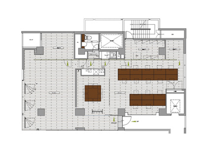
空間全体を一筆で横断するずらりと並んだ建具壁はデータベースのメタファー。その背後にあるバックスペースの大きさや内容を表層的に知らしめることはありません。無限ともいえるweb上のソース、或は意図的に取得され集積した情報等、データベースの存在自体を表現したいと考えました。
全19枚の建具のうち、開くのは5枚のみ。一見すると取手も正面からは見えず、開く・開かないの見分けがつかないディティールとなっています。整理された中にも、心地よいサプライズを生じるデザインをしています。
併設されるデジタルアート専用のギャラリースペースには大きな3枚の可動壁を計画。
壁を建具の様に回転させる事で、空間の様相と明るさを変化させ、様々なプレゼンテーションを可能にします。モニタへの写り込みの影響を避けるため、白色を使用しない素材・色彩計画となっています。
その他のエレメント、天井の照明の配線ダクトやプロジェクションの為の壁、パーティション等のオブジェクトは、明瞭なエッジを感じさせるthaのデザインイメージに沿う形で、それぞれを明確に分節。一つ一つの形状とプロポーションが明晰になる様な分節処理をしています。
ミーティングエリアのテーブル・無垢材の椅子やワークデスク等の家具もこのスペースの為にデザインしたものを設置しています。一見シンプルに見えつつ、記憶に残る様な丁寧なディティールを持つ家具デザインを心がけました。
■建築概要
物件名:tha office
設計:エイスタディ 齊藤良博
面積:168.34㎡
