
SHARE 山口誠 / 山口誠デザインによる”秋山のカフェ/住宅”

photo©KOICHI TORIMURA
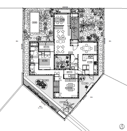
山口誠 / 山口誠デザインが設計した千葉県松戸市の”秋山のカフェ/住宅”です。

















以下、建築家によるテキストです。
秋山のカフェ/住宅
カフェを併設した木造平屋建ての住宅で、カフェのほうがやや広いくらいの割合です。ホームベース形をした敷地に十字形をした建物を配置しました。十字形の中心にある中庭も含めて6つの庭があり、それぞれ植栽のテーマを変えて特徴をつけてあります。住宅・カフェいずれも、室内に入るとそれぞれの庭に挟まれたり、庭と向き合ったりするので、そこから見える庭がどのような様子なのかが、いちばんの関心事となります。言い換えると、庭に対する視線や視界をコントロールしている壁の配置や開口部の位置といった空間構成の存在感は希薄に感じられます。
敷地は駅前といってよいくらいのエリアで、住宅地として開発されています。でもいかにもこれからという感じで、辺りはまだほとんどが空き地です。そこに建物を計画するうえでは、敷地周辺の将来のあり様を強く意識せざるを得ません。それはいうなれば現実味のあるフィクションを想定するようなものです。
隣地から続く空き地の敷地に、突然に6つの特徴をつけた庭をつくることは明らかにフィクションです。でも周辺の更地でも、いずれ住宅が建てば庭はつくられる。つまり庭はリアリティのあるフィクションと考えられます。そしてこののどかな敷地では、それ以上のフィクションを計画に加えることは不要のように思えました。住宅としてのリアリティを失い、浮き上がってしまうように思えたからです。200種以上の植栽が植えられた庭が、これからの時間経過と共に自然なリアリティをこの建物に与えてくれると思います。
■建築概要
所在地: 千葉県松戸市
設計: 山口誠 | 山口誠デザイン
構造設計: 小西泰孝 | 小西泰孝建築構造設計
照明計画: 近藤真由美 | Luxie
竣工年: 2010
構造: 木造
敷地面積: 281.89㎡
建築面積: 119.76㎡
延床面積: 117.64㎡
カフェ 野の花
千葉県松戸市秋山102-4
tel: 047-710-5841
営業時間: 11:00 – 18:00
定休日: 水曜日・第3木曜日

