
SHARE 山縣武史建築設計による”上高田の集合住宅”
photo©shinkenchiku-sha
photo©Daici Ano
photo©Daici Ano
photo©shinkenchiku-sha
photo©shinkenchiku-sha
photo©shinkenchiku-sha
photo©Daici Ano
photo©Nobuyuki Umeda
photo©shinkenchiku-sha
photo©shinkenchiku-sha
photo©shinkenchiku-sha
photo©Daici Ano
photo©Takeshi Yamagata Architects
photo©shinkenchiku-sha
photo©Takeshi Yamagata Architects
photo©Takeshi Yamagata Architects
以下、建築家によるテキストです。
「密集地に住む」
東京中野に建つ賃貸集合住宅である。
敷地は古くからの木造家屋が建ち並び、下町の雰囲気が残る住宅地の一角にある。表通りから一本入った静かで落ち着いた環境の中に、密集地に住むことの魅力が感じられる、明るく開放的な集合住宅を計画した。
「閉じつつも開かれた緩衝帯」
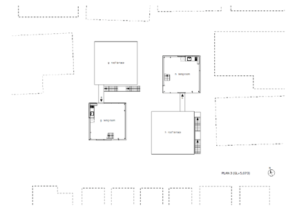
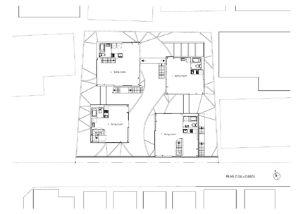
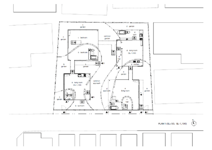
建物は、敷地いっぱいにつくられた1階部分と、小さく4棟に分けられた上階部分から構成されている。
1階では、敷地全体をカーブする壁によって分割し、各住戸がつくられている。屋外まで伸びる壁と敷地境界に沿って建つ塀によって囲われた空間は、各戸の専用のスペースとなり、それぞれの住戸にコンパクトで魅力的な外部空間をつくりだしている。前面道路から専用の屋外通路を通ってプローチするもの、中庭を挟んで向かい合う部屋をもつもの、隣家の庭へつづく裏庭をもつものなど、各住戸はどれも違ったかたちで周囲の環境と結びついている。屋外の壁にはフェンスが張られ、はっきりとした境界を示しながらも、風や光や視線が通り抜ける開放的なつくりとなっている。閉じつつも開かれた緩衝帯が敷地全体を緩やかにつなげ、閉鎖的になりがちな集合住宅の1階を明るく開放的なものとし、密集地の中に奥行きと広がりをつくりだしている。
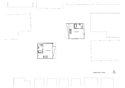
一方上階では、地上庭まで十分な光と風が行き届くように、4つの棟がゆとりをもって配置されている。ルーフテラスのある最上階のメゾネットからは、周囲の街並みを見渡すことができ、地上とはまた別のかたちで密集地に住むことの魅力を味わうことができる。
道路レベルでは下町の空気が流れ、隣家の屋根越しには高層ビル群を望むことができるような、東京のどこにでもある住宅密集地がもつ対照的な環境を生かしながら、既存の町並みに新しい魅力をもって参加していく集合住宅をつくりだそうと試みている。
「一体となった構造」
構造は鉄骨造であり、シンプルな箱形の4つの住棟は、2階の床レベルに設けられた水平ブレースを介して、屋外の壁へと地震力を伝達している。屋外に露出した構造は基礎も一体となっており、全体として1棟の安定した建物となっている。集まって住むことを象徴するように、一体となった構造体が街並みのなかに力強く現れている。
■建築概要
計画名称:上高田の集合住宅
計画地:東京都中野区
主要用途:賃貸集合住宅(計9戸)
構造・規模:鉄骨造 地下1階 地上3階
敷地面積:334.81㎡
建築面積:146.15㎡
延床面積:381.03㎡
竣工:2008年2月
構造設計:LOW FAT structure
設備設計:yamada machinery office
施工:株式会社前川建設