
SHARE GENETOによる”DG-HOUSE”

photo©Takumi Ota
GENETOが設計した東京の住宅”DG-HOUSE”です。
























以下、建築家によるテキストです。
DG-HOUSE
「生活のシーン」
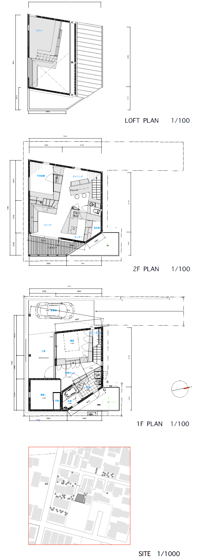
東京の閑静な住宅街、旗竿敷地に建つ住宅である。
密集した地域では法的限界まで内部空間の広さを要求されるが、重要なのは床面積ではなく、建築がもたらしてくれる「日々の豊かな生活の営み」=「生活のシーン」であると考えた。
そこで、実際の「生活のシーン」から空間をつくることを試みた。
クライアントと幾度も「生活のシーン」について話し合いを重ねるうち、それは “夫婦同士の会話” “キッチンから見える空” “子供の誕生日パーティー”など、日々の何気ない行動やハプニングに豊かさを感じることが出来るものであることがわかってきた。
そういった「生活シーン」を敷地から考えられるコンテクストを元に相互を関連づけ立体的にレイアウトすることで構成が決定された。
一階にはプライバシーの高い居室を配し、二階を大きなワンルームとしてつくり、各室を巨大な家具で分節し「生活のシーン」を顕在化させた。
意図した「生活のシーン」を成立させるため、内部空間に置かれる家具はまるで舞台セットのような役割を持つ。
例えるなら、映画に名シーンが幾つもあるように、住人が主人公となる豊かな生活の名シーンを散りばめた建築を目指した。
「建築を豊にするボリューム」
GENETOでは、これまで様々な建築未満家具以上の造作物で、経済的で機能的かつ、空間を豊かに作ることはできないか検討を重ねてきた。
初期作品のre-ped(2001)では、人の行動に即したボリュームを合板のフレームによって成立させた。このころより、空間の内部に家具以上のスケールを持つ存在を作りつけることで、空間のポテンシャルを機能的に引き出そうと試みてきた。
最近は、家具が空間に方向を与えたり用途を成立させたりと、それが空間の中にシーンを現象させる存在と言うことに興味が向かっている。
DG-HOUSEでは、機能的な家具よりむしろシーンを作り出す為のボリュームとしての家具であるという事から始まった。
ボリュームは、有機的な形状を連続させた24㎜合板の骨格を持ち、それに合板を面で取り付けることで構造を成立させている。家具の作り方と建築の作り方の両方を混ぜ合わせたような作り方をしている。このような作り方をすることで、家具としてのスケールをのこしつつも建築の壁の様な大きなボリュームを経済的に成立させている。また、二階では子供部屋のボリュームが建築の水平力を補助するなど建築に設えるさい、構造としての側面ももたせた。
構造用合板を自社独自の調色をした染料で黒色に塗装する事で、近くで見ると木目の印象を与えつつも、離れてみると一つの塊に見える。
家具の持つ精度で、空間を作り込めることは、我々がpivotoを運営し、これまでより様々な工法、ディテール、塗装方法、などを模索し実践して来ていることによるものである。


