
SHARE 小谷研一/小谷研一建築設計事務所による”東松原の住宅”

photo©鳥村鋼一
小谷研一/小谷研一建築設計事務所が設計した東京都世田谷区の”東松原の住宅”です。















photo©鳥村鋼一

以下、建築家によるテキストです。
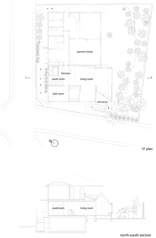
築18年の二世帯住宅の片方世帯の増築改装計画である。ゆったりとした敷地には、様々な樹々が庭を形作っており、夏蜜柑の樹は道路境界を超えて生い茂って気持ち良さそうな木陰をつくっていた。
アプローチは擁壁一部を切り崩し夏ミカンの樹に向かって登っていくような階段を設けた。増築ボリュームはモミジやツバキなどの中木と相対し、アプローチ階段を登ってすぐに庭が一望出来ないような配置とした。既存部と増築部に挟まれ、夏ミカンの枝が覆い被さった場所がエントランスポーチとなっている。
増築部と改装部がひとつながりとなるリビングダイニングキッチンは、壁を同じような長さに分解することで、どこかの壁が特化したものではなく、増築部と既存部の同等な関係を目指した。折れ曲った壁や天井は、先が見切れることで限りある空間に心理的距離感を与え、弱く包むような角度の壁は、他の場所とつながっていると同時に少し独立しているような居場所を作り出している。黄色く塗られた壁・天井は、外の緑を引き立て、刻々と変化する光の陰影をより強調し、面によって異なった色味を見せる。
外壁は既存部と、アプローチの門扉は隣り合う擁壁と同じ仕上げを装っている。このように外部仕上げは、既存の状態を肯定するでも否定するわけでもなく、ただそこにあるものを受け継ぎ、纏っている。新しくつくられるものが、既存建物や擁壁などに対してコントラストを生み出すのではなく、そこに同化しているようだが、注意深く見ると気付く、「忍び込んだカメレオン」のような存在になればと考えた。
■建築概要
名称:東松原の住宅
所在地:東京都世田谷区
用途:専用住宅
構造:在来木造(増築部) 2×4(既存部)
規模:地下1階 地上2階(地上1階のみ増築改装)
敷地面積:365.83m2
建築面積:150.60m2(建蔽率41.17% 許容60%)
延床面積:281.43m2(容積率76.93% 許容160%)
改装面積:52.17m2増築面積 13.14m2 計65.31m2
設計:小谷研一/小谷研一建築設計事務所
構造設計:加藤征寛/MID研究所
施工:月造

