
SHARE sinatoによる”PATRICK COX”

photo©矢野紀行(ナカサアンドパートナーズ)
sinatoがデザインした東京北青山のショップ”PATRICK COX”です。






photo©矢野紀行(ナカサアンドパートナーズ)

以下、建築家によるテキストです。
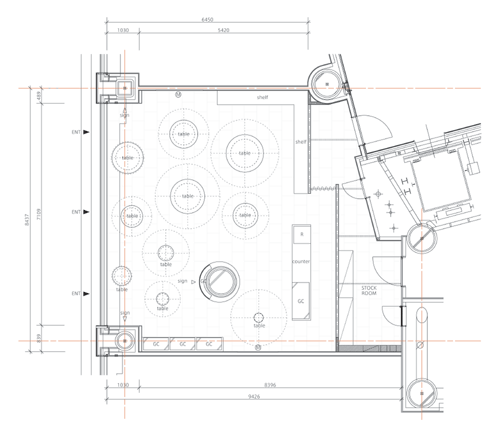
服飾雑貨店のインテリア。
区画内に元々あった丸柱の形状を踏襲した、丸いテーブルと丸い吊り照明だけで全体をつくっている。
テーブルは全て径を変えていて、小さなものから大きなものへ、回遊性を考慮しながらグラデーション的に配置した。
また、径の大きなものにはサイズの大きな商品が陳列され、径の小さなものにはサイズの小さな商品が陳列されるという具合に、テーブルのゾーニングがそのまま商品のゾーニングを決定している。
一方、ここでは「商品への光」というものを非常に重要な要素として考えていた。
商品になるべく近い位置の光源から局所的に照らすということが、商品一点一点をより良く見せるということに繋がると考えていたのである。
天井の高さは4mもあり、天井からの照明では商品までの距離が遠過ぎるので、吊り照明によって全てのテーブルの真上に光源を設定した。
その結果、天井からの照明は殆どいらなくなり、この空間は「上が暗く下が明るい」という特殊な状況を獲得している。
壁の色のグラデーションは、上記を助長するものである。
また、吊り照明はその逸脱したスケールと複雑な形状によって、この空間上部に余る空隙を切り欠きそこにカタチを与えている。
FL+2500の位置でボトルネックとなるように切り欠かれた空隙は、店内にトンネル状の空間を生み出し、開放的でありながらも少し身体が包まれるような体験を生み出している。
■建築概要
[物件名]PATRICK COX
[用途]物販店
[計画地]〒107-0062 東京都港区北青山 3-11-7 Aoビル1F
[区画面積]79m2
[竣工]2009.3
[設計]sinato・大野 力・鎌田 健
[施工]ジーク
[写真撮影]矢野 紀行(ナカサアンドパートナーズ)


