
SHARE sinatoによる”DURAS ambient Fukuoka”

©石井紀久
sinatoによる福岡のアパレルショップのインテリア”DURAS ambient Fukuoka”です。






©石井紀久



以下、建築家によるコンセプト文です。
[反転・断片]
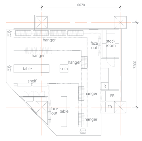
ファッションビル内のレディスアパレルショップのインテリア。
与えられた区画は角地で、2方向から客が入店するような場所であった。
僕らは、その2方向を繋ぐようにしてL字型の薄い壁を5枚、入れ子状に並べた。
また、一定の間隔で並べるのではなく、壁と壁の間に出来る隙間が場所によって変わるようランダムに並べることで、隙間の幅が広い場所は通路や島什器の置き場所として、隙間の幅が狭い場所は商品陳列のスペースや視線の抜け道として使いたいと考えた。
隙間の幅は、壁が折れ曲がる部分で切り替わる。
つまり、店内を歩いていると、今まで通路だった表側の場所が角を曲がると商品が陳列された裏側の場所になってしまったり、商品が陳列された裏側の場所が角を曲がると通路という表側の場所になっていたり、ということが起こる。
それは、この空間における地と図の関係が、いつの間にか反転してしまうようなイメージの体験である。
また、壁自体にはたくさんの開口を設けた。
開口部から見える商品や人の姿は、壁と壁の隙間から見えるそれらの姿と相まって、空間の見えを複雑なものにする。
店内に連続する上記の体験や複雑な見えは、例えばオムニバス映画のように1つのルールで繋がってはいてもそれぞれのシーンが断片的で、しかしそれ故に何か実際以上の空間の広がりを感じさせてくれるものとなったような気がしている。
□建物概要
名称:DURAS ambient Fukuoka
所在地:福岡県福岡市
用途:物販店
面積:73.86m2
設計期間:2008.2〜2008.3
施工期間:2008.4〜2008.4

